cover

046
Myrha

Construction de 14 logements et 1 commerce


Maîtrise d’ouvrage
RIVP
Lieu
rue Myrha, Paris18 (75)
Maîtrise d’œuvre
Atelier FUSO (architecte mandataire)
LM (structure, thermique, HQE)
Atelux (fluides)
ALP (économie)
Venathec (acoustique)
Surface
600 m² logements
80 m² commerce
Coût
2.1 M€
Label
NF Habitat Hqe 7*
Effinergie +
Biosourcé niveau 2
RT 2012<20%
Calendrier
Livré janvier 2025
Photo
@ Antoine Seguin
@ Jamet-Guedj

façade ventilée
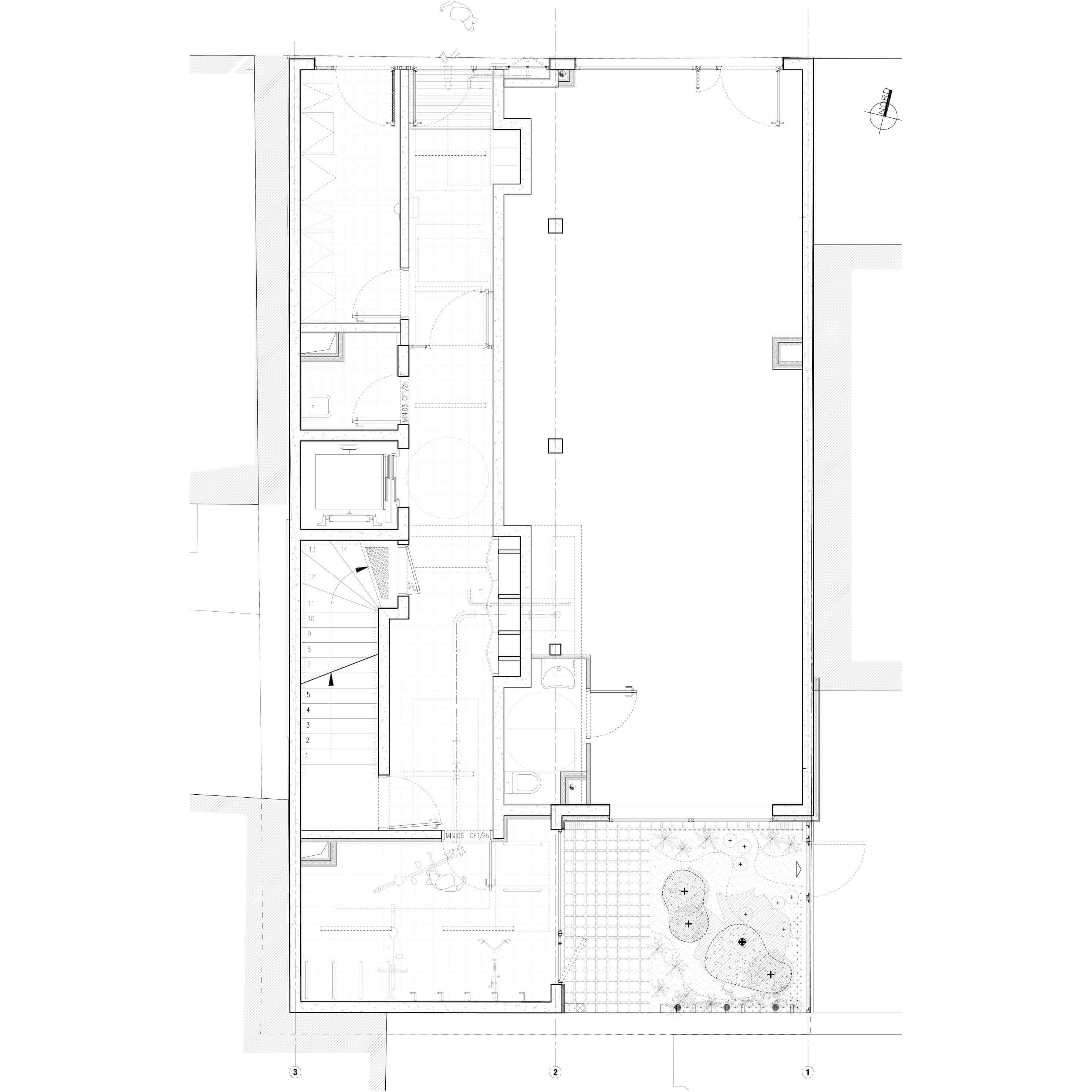
plan Rdc
plan R+2 à R+4
plan R+5
axonométrie d'intégration "dent creuse" à la Goutte d'Or
plan masse
axonométrie éclatée
détail façade ventilée

La Goutte d'Or doit son nom à la couleur du vin produit par ses anciennes vignes.

Dans ce quartier populaire, l'édification était, historiquement, affaire de moyens du bord et de matériaux locaux. Elle suscite aujourd'hui un fort attachement de la part de ses habitants.

Notre projet pour la création de 14 logements se saisit ouvertement de l'archétype de l'immeuble faubourien pour en réactiver les valeurs architecturales et constructives.

Trame constructive, pourcentage d'ouvertures, qualité des matériaux et façades épaisses sont issus de la réinterprétation de ce modèle et de son adaptation au 21e siècle.

L'emploi de matériaux locaux favorisant les circuits courts et la transformation de matériaux de déchets complètent ces pistes.

La structure flexible employée (murs mitoyens porteurs et poteaux centraux de reprise des charges de planchers) permet d'envisager de multiples transformations dans le temps, d'adapter les typologies aux usages et modes de vie futurs.


Plus de projets