cover

131
Hameau

Construction de 25 logements sociaux


Maîtrise d'ouvrage
I3F
Lieu
40-42 Route de Tournan, Conches sur Gondoire (77)
Maîtrise d'oeuvre
Atelier FUSO (architecte mandataire)
BOMAN (architecte associé)
BIOTOPE (BET TCE)
D&H (paysagiste)
Surface
1.511 m²
Coût
2.98 M€
Label
RE2020
Calendrier
PRO en cours
Photo
@ Jeudi Wang

Principe d'implantation

Inspiré par la forme urbaine du hameau, notre projet questionne la notion de densité maîtrisée. Il est essentiel de trouver une réponse adéquate à la demande de cadre de vie individuel en li&en avec la nature, tout en l’adaptant à des formes urbaines plus collectives.

Le principal objectif du projet est la recherche d’un juste équilibre entre l’échelle du pavillonnaire et celle du bâtiment collectif. Autour de cette question tout s’articule. Dans cette logique, chaque logement profite des avantages des logements collectifs et ceux de la maison individuelle en :

- Limitant l’impact du bâti par son intégration entre les arbres existants,

- Privilégiant des architectures simples mais généreuses en qualités d’habiter (typologies traversantes, grands balcons, volumétries compactes, matérialités sans geste superflu),

- Mettant à distance les voitures à l’entrée du site, au profit des circulations douces et sans nuisance à l’intérieur de la parcelle,

- Étant attentif à un “vivre ensemble” avec une gradation des espaces entre l’extérieur et l’intime.

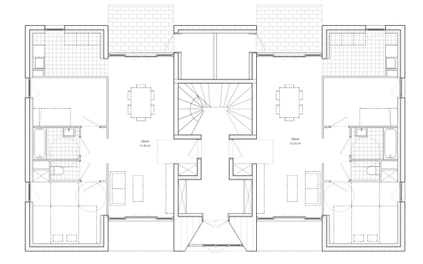
Les 25 logements se divisent en 4 bâtiments R+1, organisés autour d’un coeur d’îlot qui connecte l’ensemble du programme. Par leurs hauteurs et leurs profils, les constructions s’insèrent harmonieusement dans le tissu urbain du quartier.


Plus de projets