cover

101
Le Manoir

Réhabilitation d’un manoir en 9 logements sociaux et
Construction de 27 logements sociaux neufs et un parking


Maîtrise d’ouvrage
DOMNIS
Lieu
Bailly (78)
Maîtrise d’œuvre
Atelier FUSO (Architecte)
Septo (architecte du patrimoine)
Sosson (paysagisste)
Scyna 4 (structure)
Alternet (fluides)
AI Environnement (thermique, HQE)
ALP (économie)
Atelier Juno (BIM)
Surface
2.150m² logements
Coût
5.1 M€
Label
NF Habitat HQE
RT 2012<20%
E3C1
Calendrier
Concours 2021
2è prix
Image
@ PPC

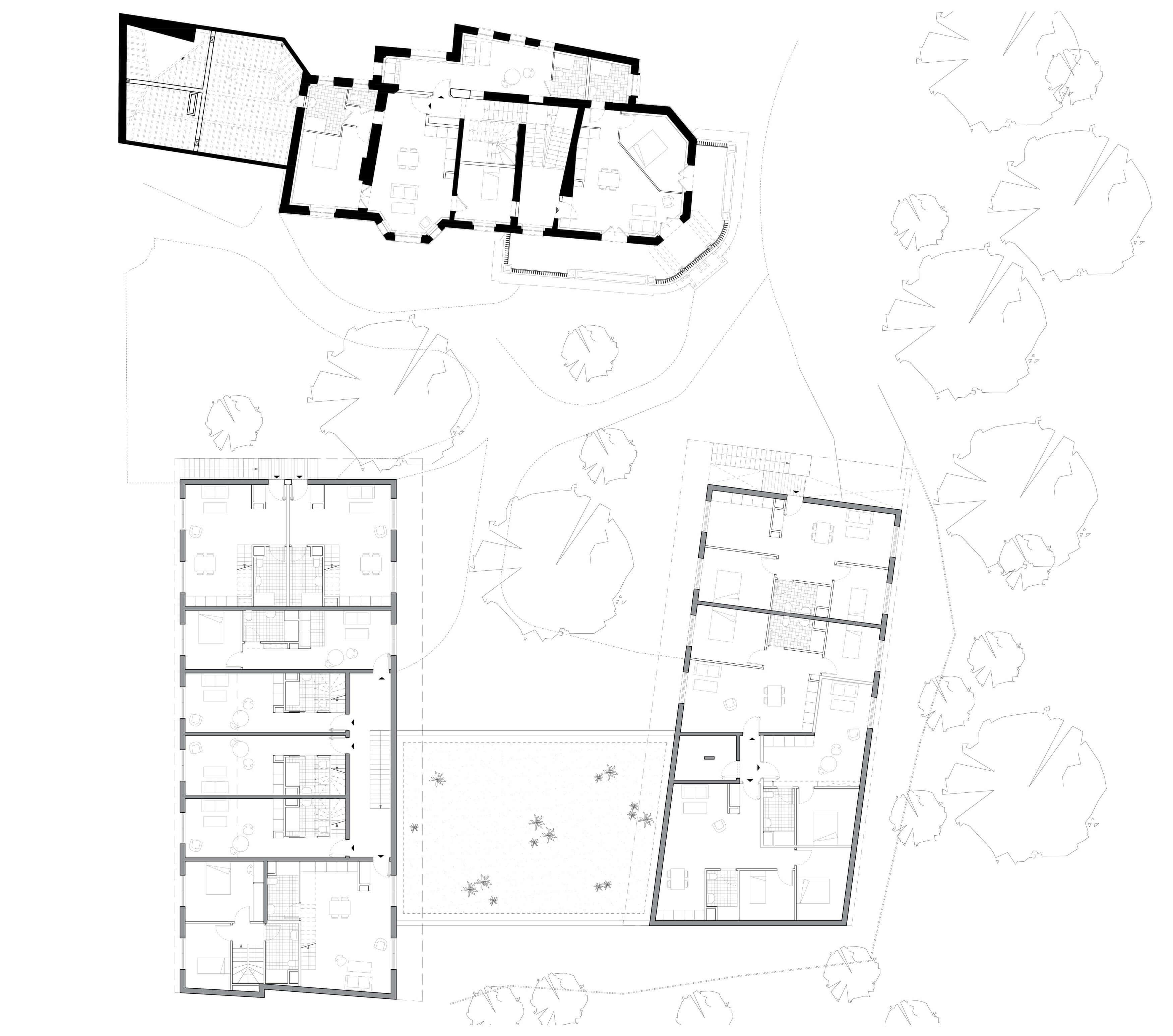
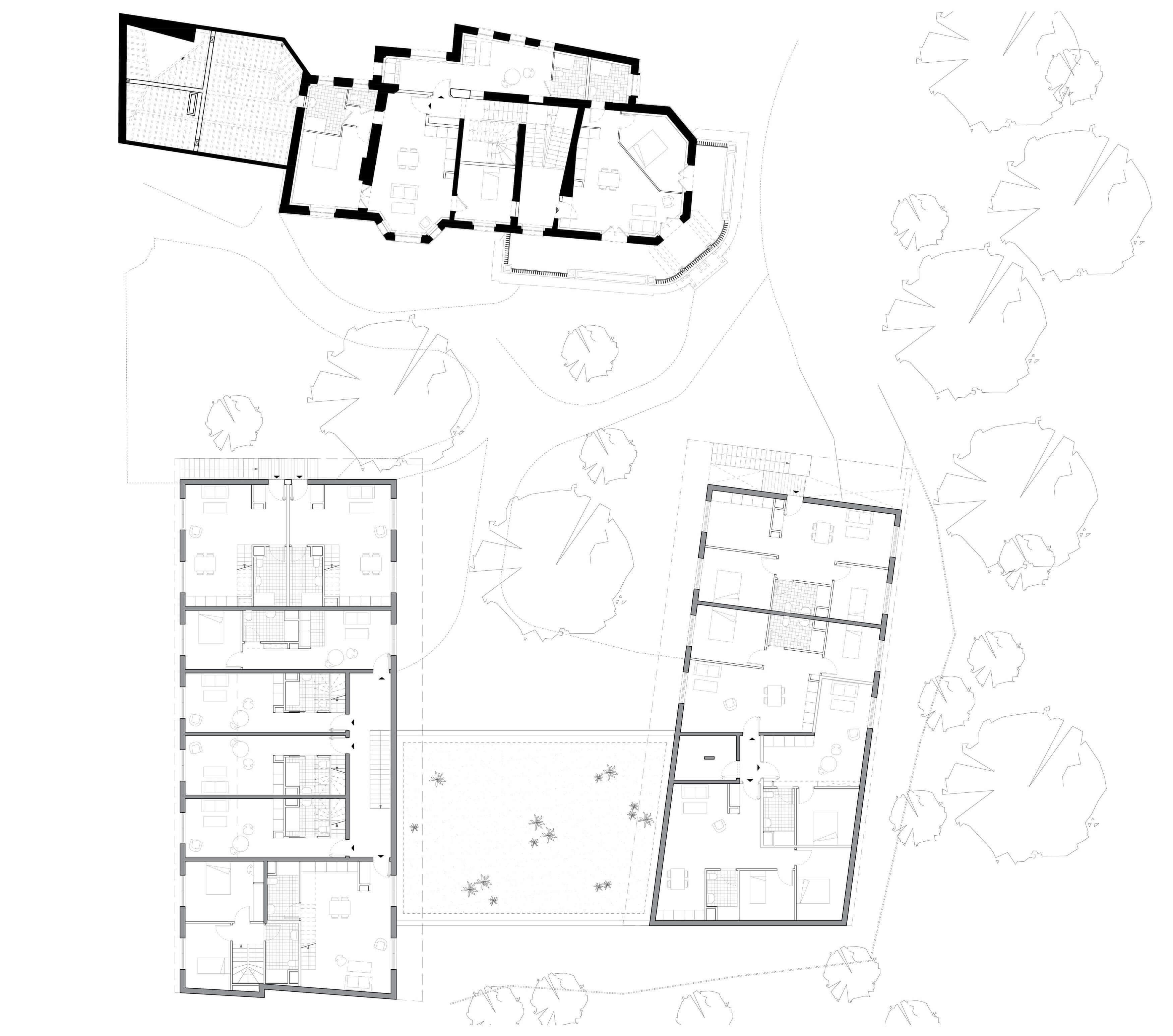
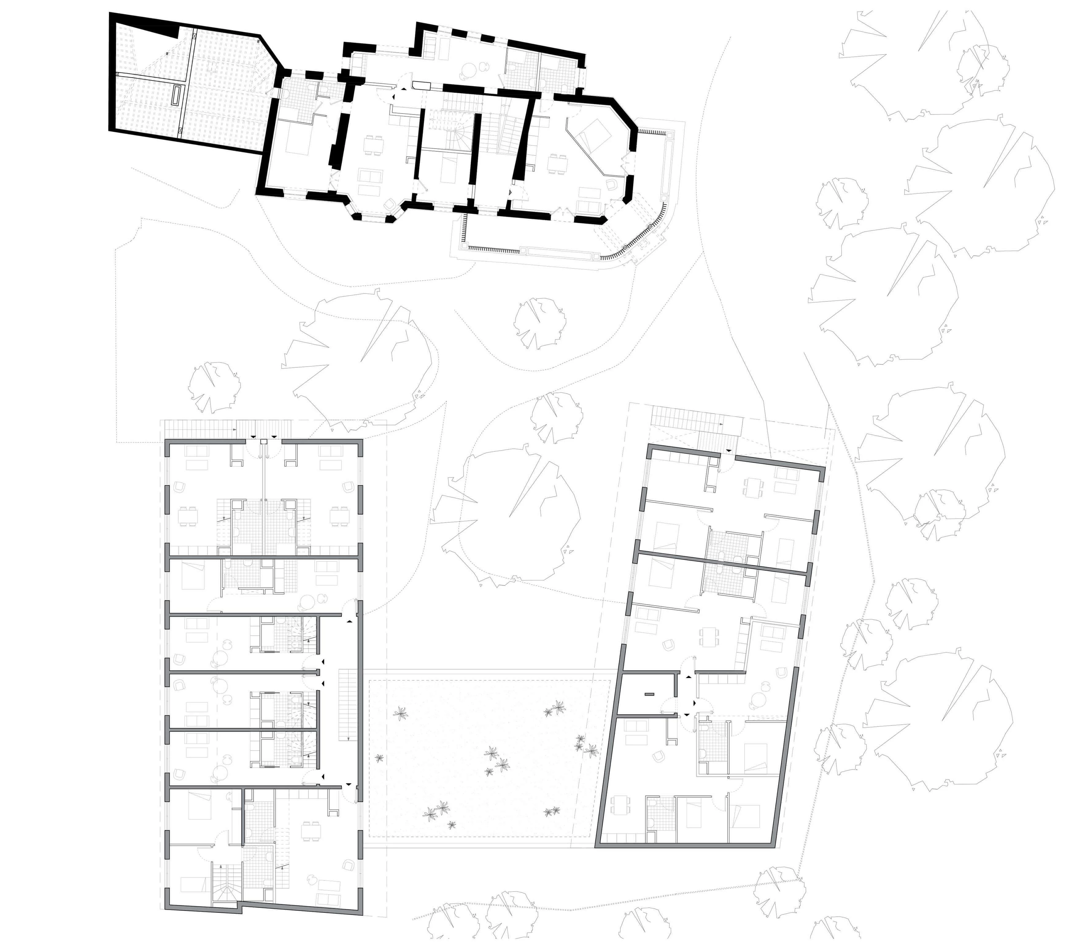
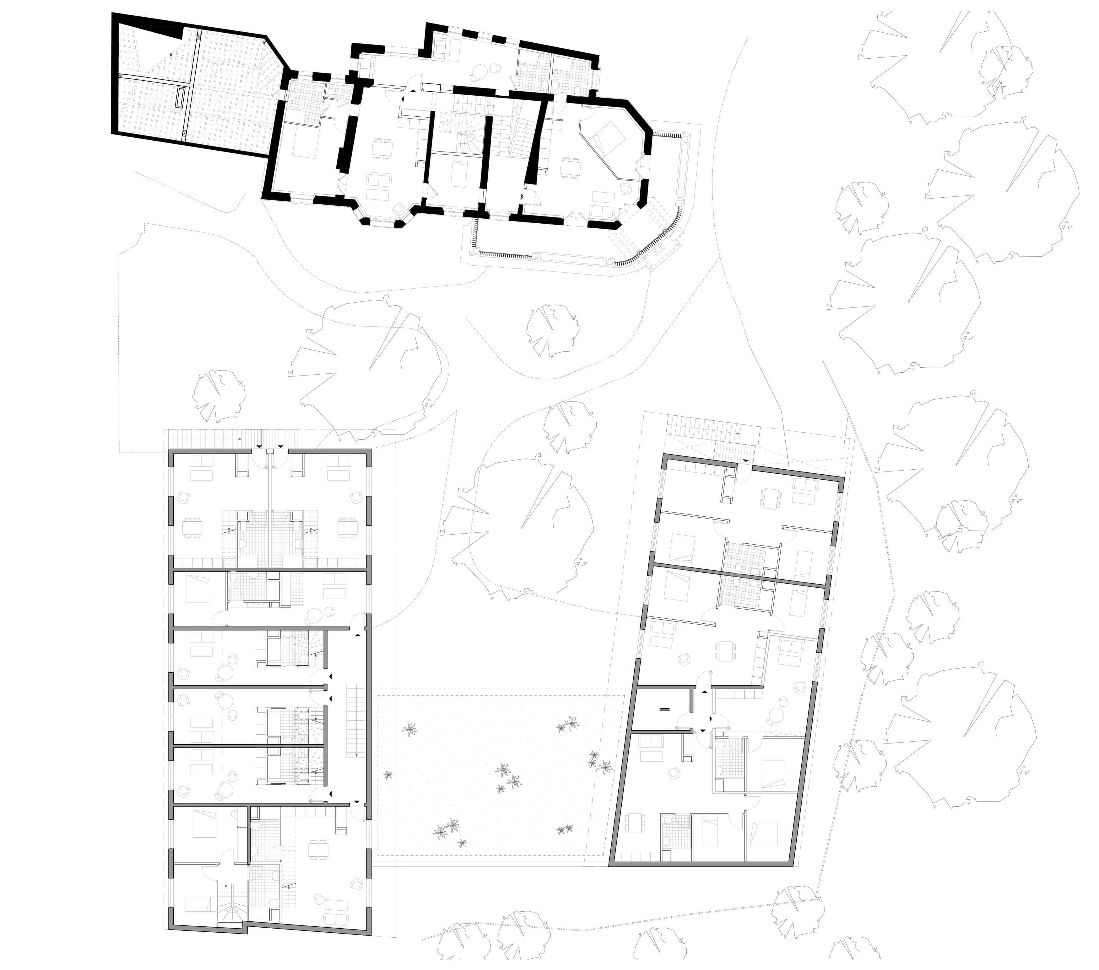
Notre projet se saisit ouvertement du contexte rural et s'appuie sur l'archétype de la maison de maître et des « communs ». Ce parti répond à la question de la dualité d'une construction neuve avec un édifice ancien imposant, permettant de réactiver la valeur architecturale du manoir plutôt que de l'écraser.

Pour cela, à l'image donc des « communs » d'une grande propriété, la volumétrie, l'implantation vis-à-vis du corps bâti du manoir, la trame structurelle et la technique constructive envisagée de la nouvelle construction projetée, veulent traduire tout d'abord la réinterprétation de ce modéle et de son adaptation au 21è siècle afin de garantir cette transition entre histoire et nécessité contemporaine. Il ne s'agit pas cependant ici de copier une image, mais bien de la comprendre, et de là, mieux saisir les formules adaptées et les idées performantes pour le projet et son environnement.

Les nouveau bâtiment se compose de 3 ailes, avec des hauteurs différents. L'ensemble de logements sont traversants. Structure mixte en béton, bois et panneaux de béton chanvre avec enduit à a la chaux.


Plus de projets