cover

005
Open space - JM0

Open space et plateforme logistique


Maîtrise d’ouvrage
SCI Jean Martin
Lieu
Saint Ouen (93)
Maîtrise d’œuvre
Atelier FUSO (architecte mandatire)
IPH (structure)
Balas (fluides)
Serial (acoustique)
Ciel (paysagiste)
Surface
1.000m² plateforme
1.630m² bureaux
1.920m² espaces extérieurs
Coût
3.7 M€
Label
BBC Rénovation
Calendrier
Livré en 2015
Photo
@ Clément Guillaume

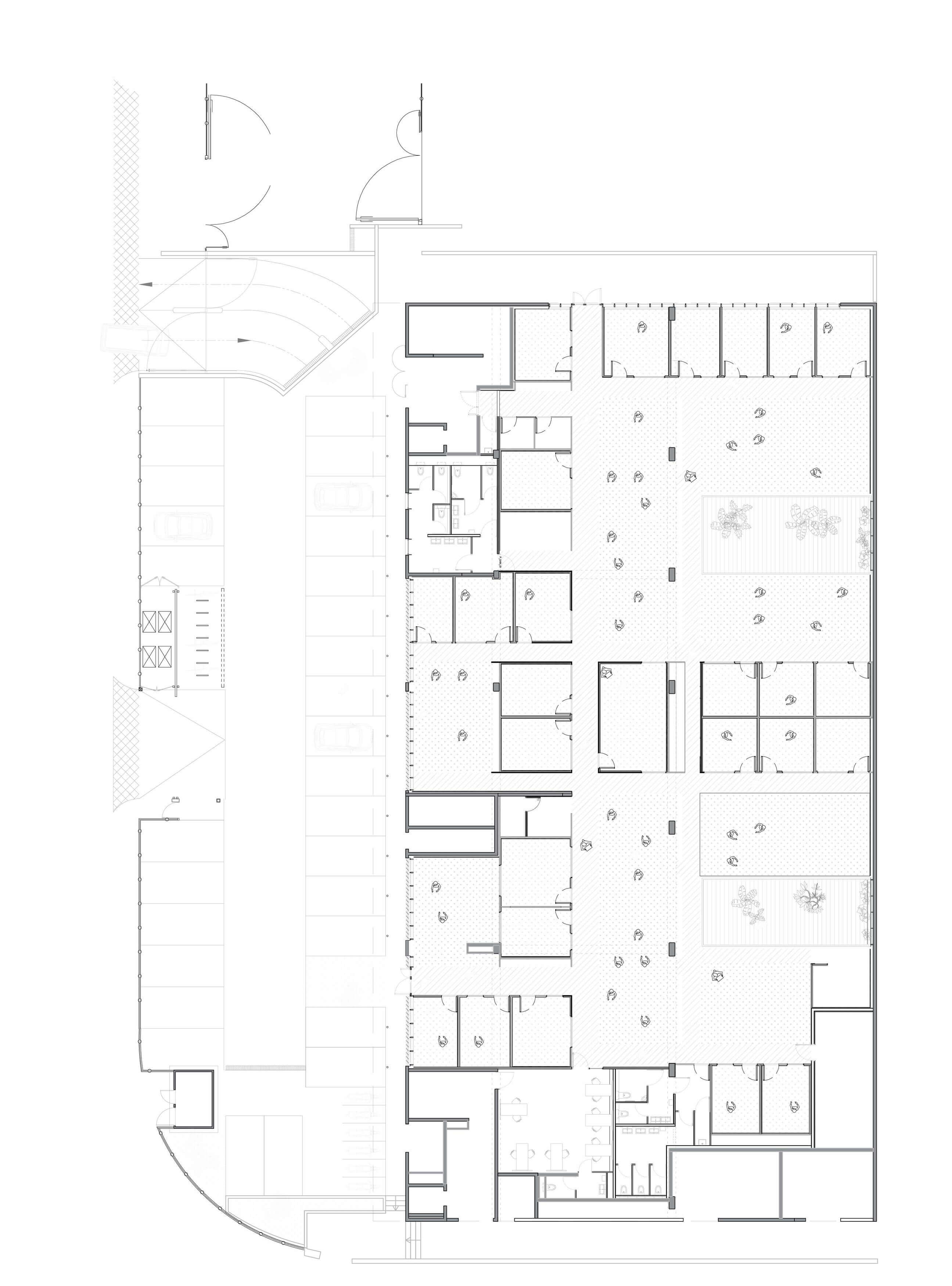
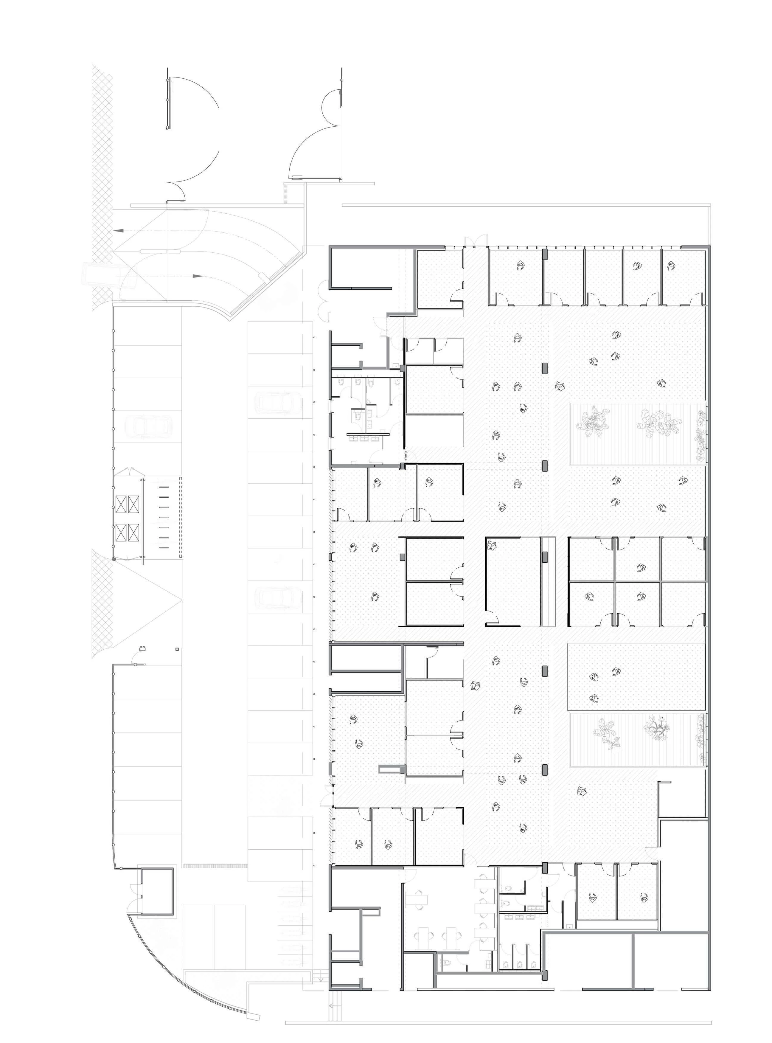
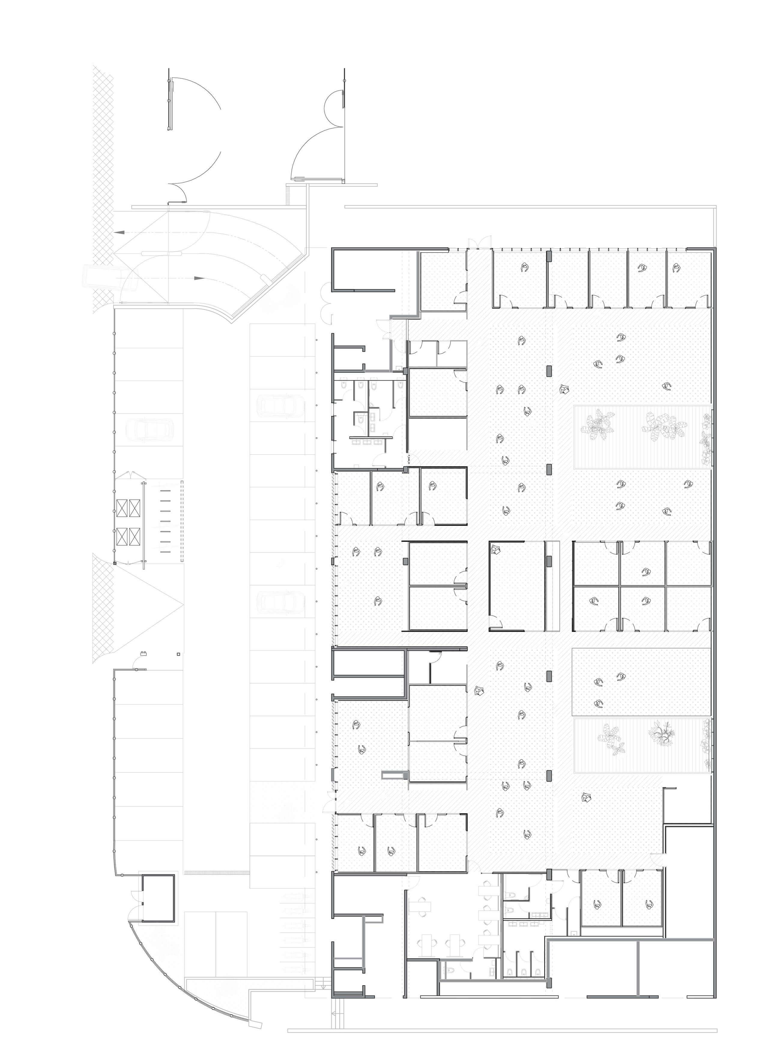
Ce projet de reconversion achève une rèflexion sur le réaménagement complet des locaux en concertation avec la direction de l'entreprise sur plusieurs axes stratégiques de l'organisation . L'opération implique la création d'un planning sur plusieurs années intégrant à la fois les déménagements succesifs et les travaux des différentes phases.

Les bureaux et salles de réunion sont des volumes en panneaux de bois massif. Préfabriqués, ils structurent l'espace sans le cloisonner pour laisser la lumière naturelle pénétrer dans la profondeur du volume et répondre aux contraintes techniques : passage libre des réseaux. désenfumage et ventilation naturelle. La préfabrication par usinage numérique de ces éléments en bois permet une mise en oeuvre rapide sur site avec de petits engins de levage, profitant des anciens sas de déchargement et de la surcharge d'exploitation acceptable dans cet ancien local d'activité.


Plus de projets