cover

115
Ilot D - Le Pontet Sud

Construction de 35 logements locatifs collectifs


Maîtrise d’ouvrage
Domofrance
Lieu
Ilot D,Le Pontet Sud, Pessac (33)
Maîtrise d’œuvre
Atelier FUSO (architecte mandataire)
EVP (structure)
Biotope Atelier (fluides, thermique, HQE)
Lpp (économie)
Emacoustic (acoustique)
Niez studio (paysagiste)
Simethis (écologue)
AÄPA (gestion de chantier en zone arbrée)
VIA infra (VRD)
Gescor (OPC)
Atelier Juno (BIM)
Surface
2.633 m² logements + espaces extérieurs
Coût
5.34 M€
Label
NF Habitat
RE2020
Biosourcé Niveau 2
Calendrier
Concours 2022
2è prix
Image
@ PPC

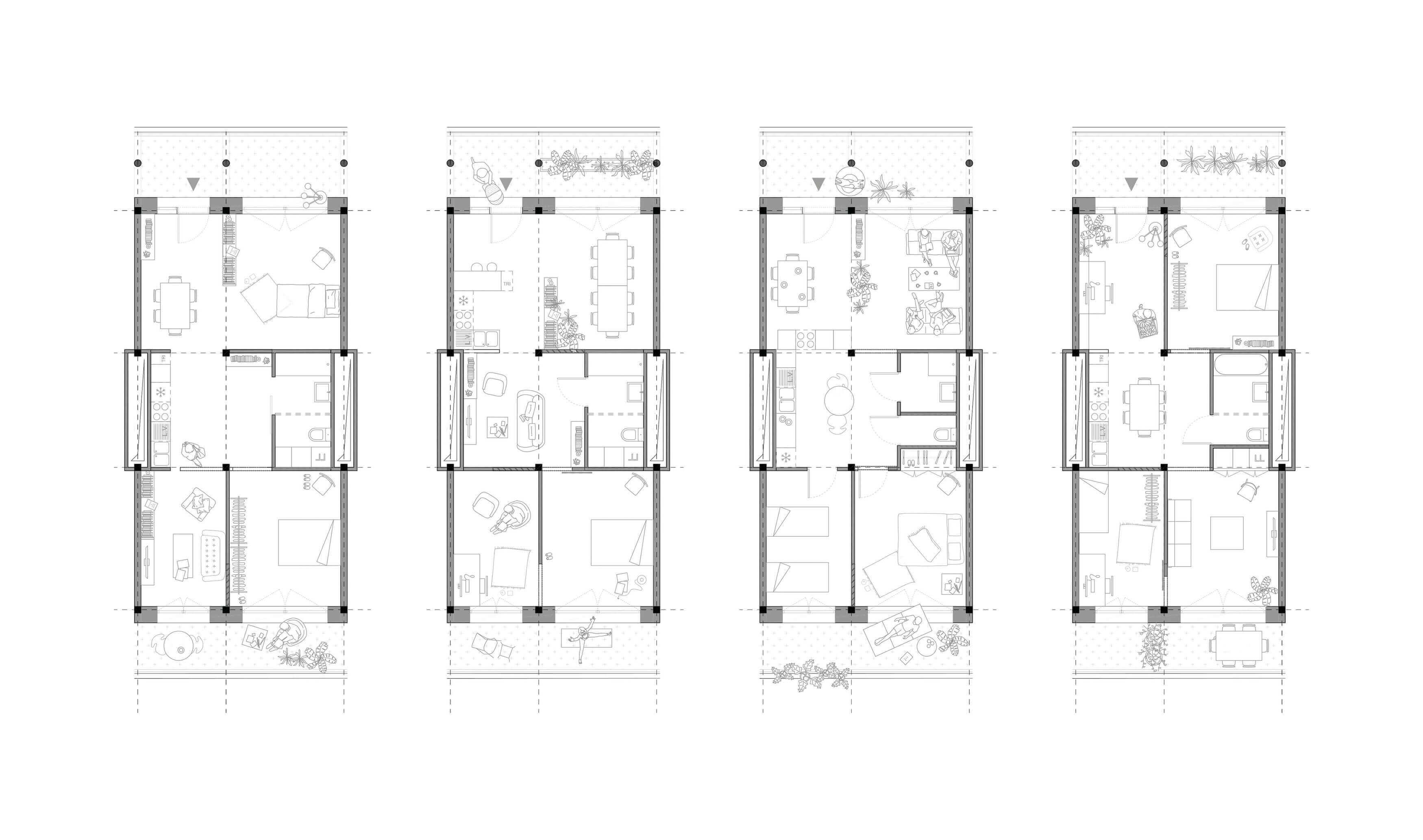
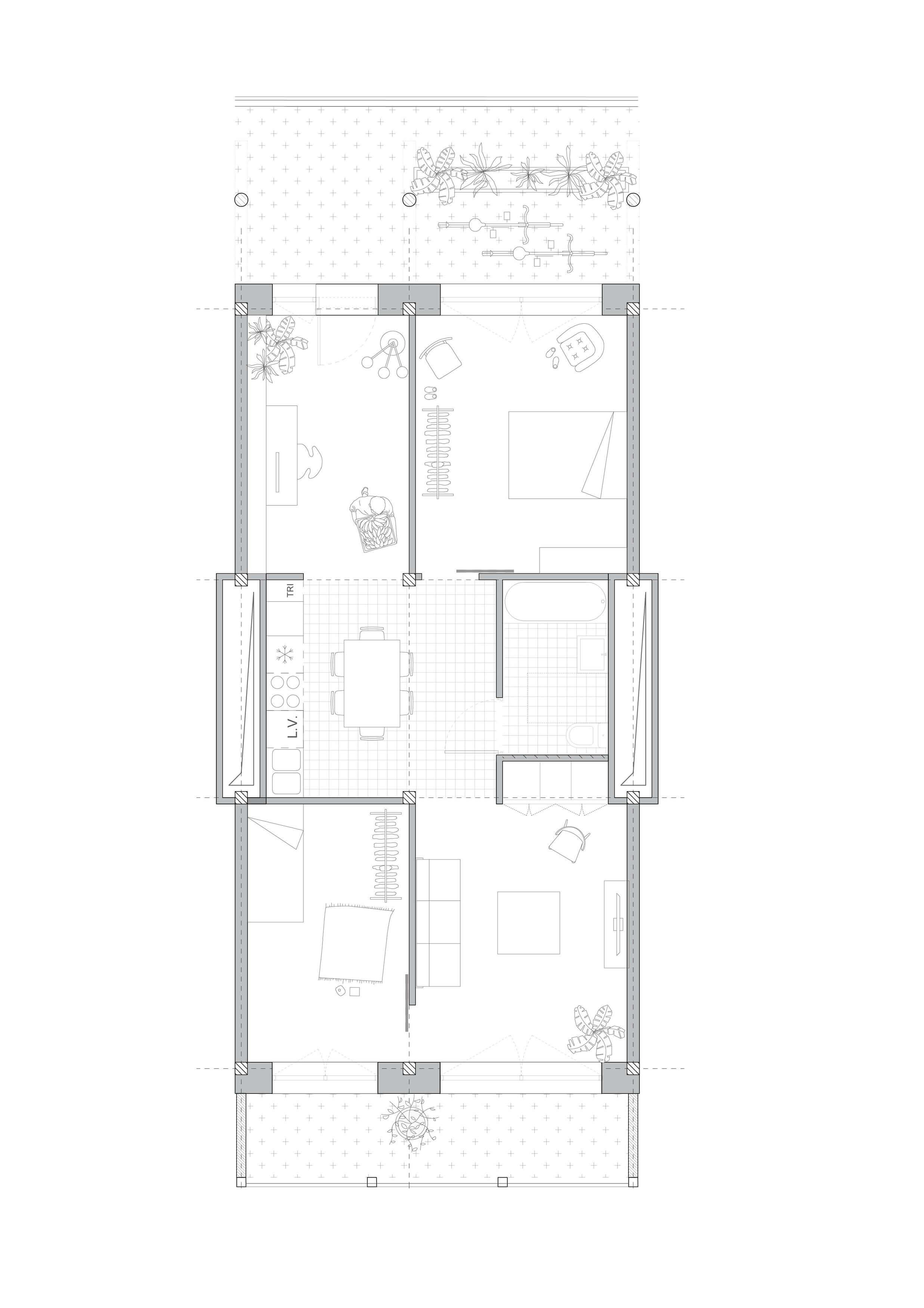
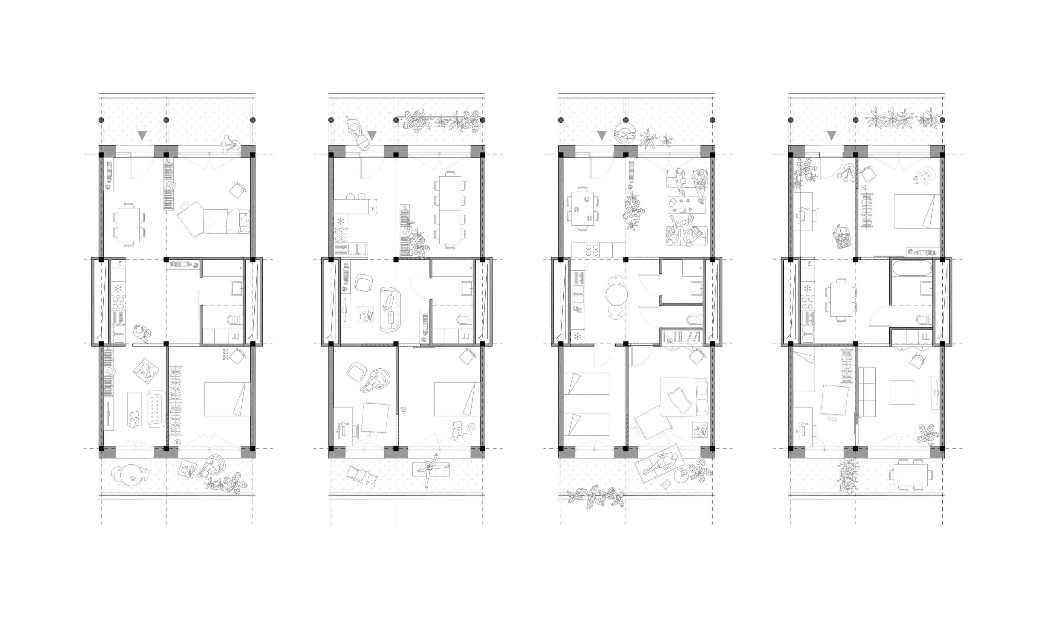
Notre projet vise l'épanouissement de la collectivité des habitants dans une proximité entretenue avec un environnement remarquablement précieux. Organiser la vie des habitants selon des règles qu'ils se fixeront eux-mêmes, entre collectivité et privacité, est un des objectifs de notre parti d'implantation qui favorise des espaces d'expression intimes tout en préservant des surfaces de sociabilité et d'échanges importants.

Ces scenarii se construisent autour d'un rapport à l'extérieur ext rêmement diversifié : des galeries, paliers et terrasses partagés permettent des interactions et de multiples appropriations collectives, tandis que des terrasses privatives favorisent une projection de la cellule intime du logement vers le paysage et entretiennent une relation étroite des habitants avec les éléments naturels: les arbres, la lumière, l'air.


Plus de projets