cover

135
Pension de famille et CMP

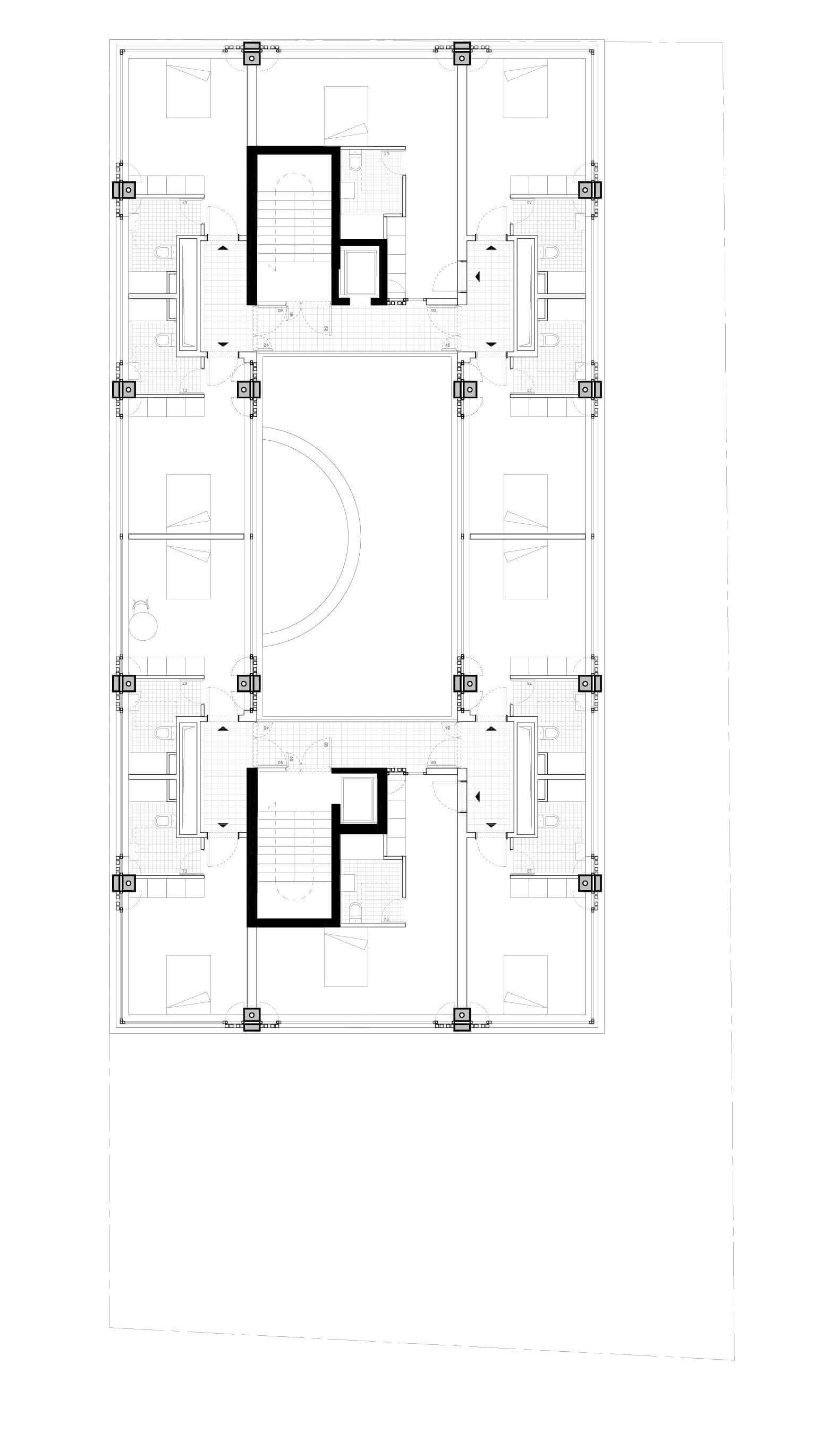
Construction de 27 logements locatifs sociaux dont 22 en pension de famille, 3 logements pour jeunes et 2 logements sociaux et un Centre médical


Maîtrise d'ouvrage
Domofrance
Lieu
Ilot CA3, ZAC Route de Toulouse, Bègles (33)
Maîtrise d'oeuvre
Atelier FUSO (architecte mandataire)
Cetab (BET TCE)
Pollen (paysagiste)
Surface
970 m²
Coût
2,1 M€
Calendrier
Concours 2023
Image
@ PPC


Plus de projets