Légende du cover. cover

122
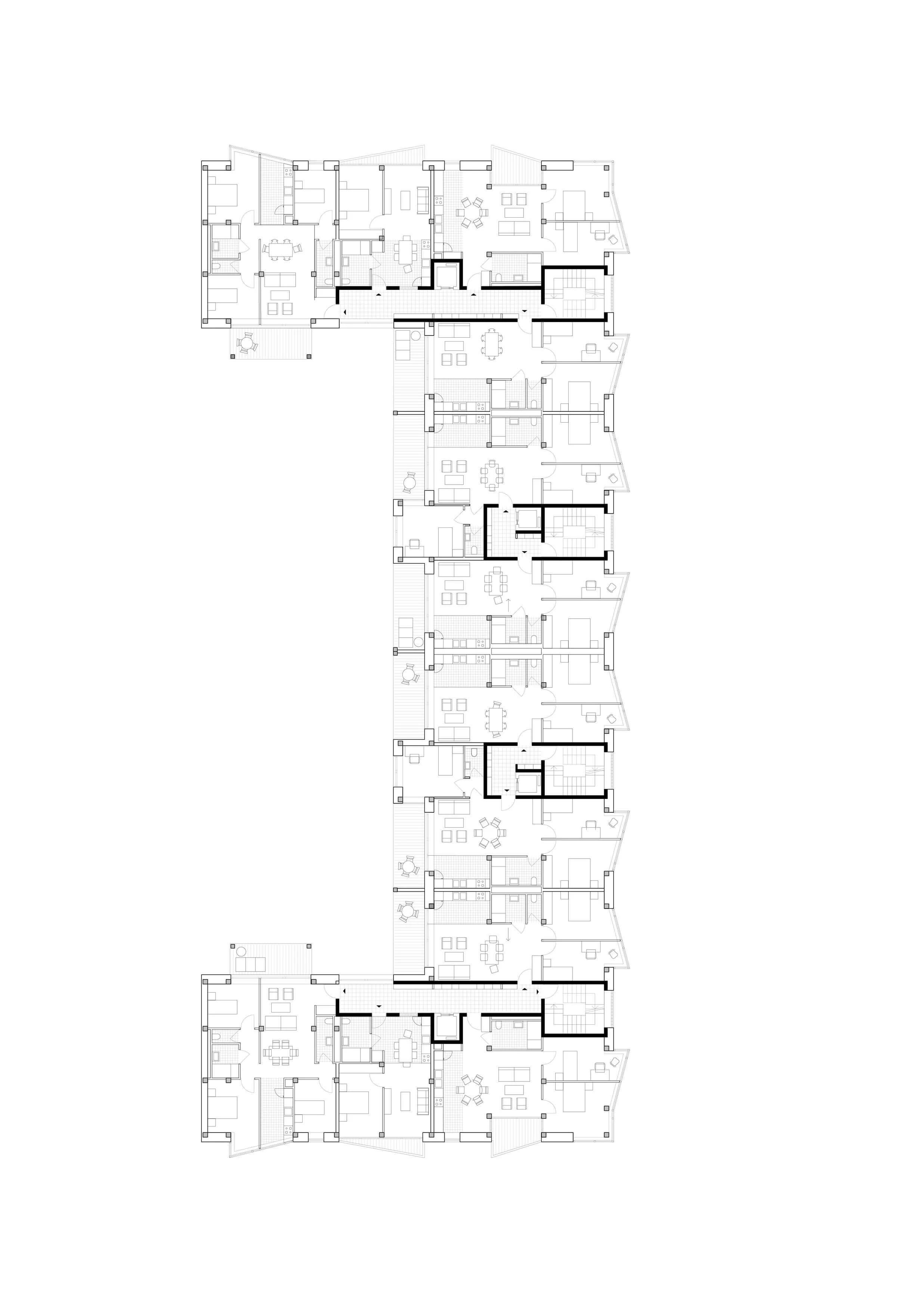
Habiter Chapelle Charbon

Construction d’un immeuble mixte de 78 logements et locaux d’activités au RDC


Maîtrise d’ouvrage
RIVP
Lieu
ZAC Chapelle Charbon, Paris 18 (75)
Maîtrise d'oeuvre
Atelier FUSO (architecte mandataire)
A-platz (architecte associé)
Wagon (paysagiste)
Evp (structure)
Vpeas (économiste)
Espace Temps (fluides, thermique, HQE)
Alternative (acoustique)
Surface
6.033 m² logements
370 m² locaux activités
Coût
18.2 M€
Label
Plan Climat de la Ville de Paris
RE2020
NF Habitat HQE
Biosourcé Niveau 2
Pact Fibois
Calendrier
Concours 2022
Image
@ Jeudi Wang

Constituer la ville sédimentaire, passe, avant tout, par la prise en compte du territoire.

Loin du rapport de force, la sincérité de l'écriture familière proposée doit permettre de rendre intelligible le projet de construction.

Par le respect d'un gabarit et d'une volumétrie maîtrisée, ou la mise en oeuvre d'un vocabulaire commun, nous souhaitons révéler la sensibilité du territoire, respecter le contexte et ses habitants.

Sobriété, simplicité et générosité dans l'acte de construire.

Par la sobriété, dans le choix des matériaux énoncés, nous désirons créer un quartier décarboné.

Par la simplicité des assemblages et des modes constructifs, nous voulons concevoir des logements de qualité, réversibles et évolutifs.

Par la générosité, nous souhaitons activer le rez-de-chaussée pour nourrir un lien indéfectible avec le parc et l'espace public.

De ce quartier en mutation, l'architecture vient redéfinir un milieu tempéré et engagé, entre patrimoine parisien et récit contemporain, entre devenir dense et grand paysage, performances écologiques et attractivité.

Ce projet en cours entend poursuivre, par l'invention d'une composition collective et d'un dialogue permanent, la constitution d'un nouveau quartier habité.


Plus de projets