cover

108
Magenta

Construction de 8 logements sociaux et 1 commerce


Maîtrise d’ouvrage
Pantin Habitat
Lieu
rue Magenta, Pantin (93)
Maîtrise d’œuvre
Atelier FUSO (architecte mandataire)
Make (structure)
Atelux (fluides, thermique, environnement)
ALP (économie)
Surface
394 m² logements
34 m² local commercial
Coût
1.6 M€
Label
NF Habitat HQE
RE2020
Calendrier
Chantier en cours
Image
@ PPC

Situé au coeur des Quarte Chemins, entre le périphérique et l’avenue Edouard Vaillant, le quartier de Sainte Margarite conserve une identité propre de faubourg. La rue Magenta, ainsi que les rues adjacentes, sont dominées par de petits collectifs en R+3 et R+4. En pleine rénovation urbaine depuis quelques années, le quartier de Quatre Chemins fera l’objet de deux nouvelles centralités ; celle du programme mixte développé dans le bâtiment du marché des Portugaises et l’Ecoquartier. Ainsi la rue Magenta redevient un axe structurant à l’échelle du Quartier Sainte Margarite.

Le quartier concentre des enjeux urbains et environnementaux dont la compréhension et l’intégration conditionne la réussite du projet. Notre objectif a été de définir et d’articuler ces enjeux pour concevoir un projet dans un environnement en mutation, incertain et parfois contradictoire. Dans ce quartier en mutation, l’architecture redéfinit un milieu tempéré entre patrimoine architectural et devenir dense et attractif, populations et mixité, performances écologiques et économiques.

Notre projet se saisit ouvertement de cette architecture pour en réactiver les valeurs architecturales, toute en améliorant la qualité constructive et dans un objectif de pérennité et de conservation du patrimoine. Trame constructive, pourcentage d’ouvertures, qualité des matériaux et composition de façades sont issus de la réinterprétation de ce modèle urbain et de son adaptation aux usages et aux problématiques du 21e siècle.

Dans une optique de résilience et d’anticipation des futures évolutions nous avons proposé une structure flexible en poteaux-poutre avec une dalle en poutrelle hourdis reprend les systèmes constructifs traditionnels. Le projet s’organise sur une trame de 3x3 avec de trames de 3,6m.

Seulement le noyau central d’ascenseur et d’escaliers situé sur la façade sur cour (de façon à bénéficier de la lumière naturelle) sera en voile porteuse. Cette configuration rationnelle, permettra de libérer au maximum le charges à l’intérieur du volume et faciliter les évolutions des aménagements. C’est ainsi que l’on pourra voir l’organisation spatiale intérieure du bâtiment évoluer.

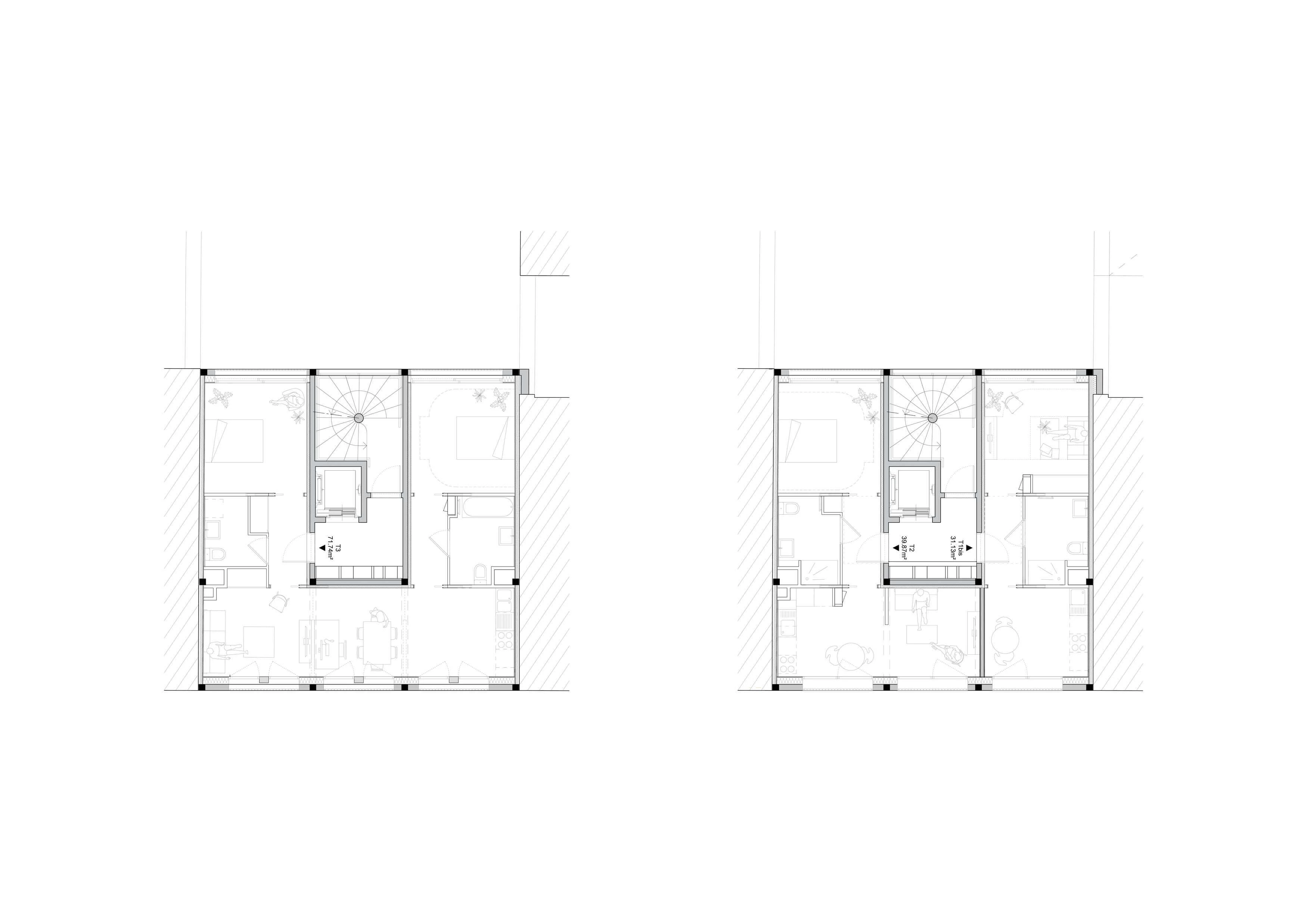
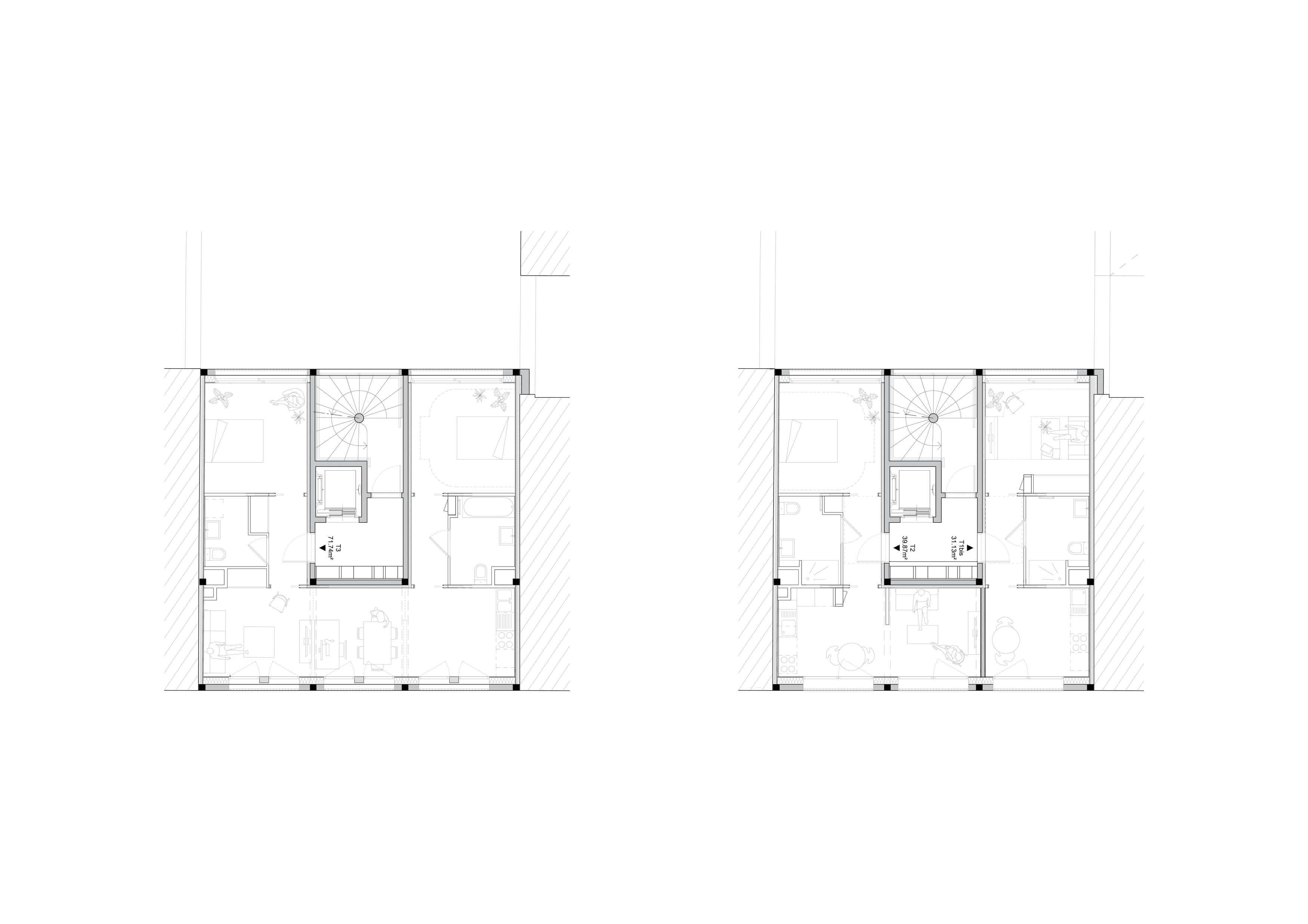
Plan R+6
Plan R+5
Plan R+4
Plan R+3
Plan R+2
Plan R+1
Plan Rdc

Plus de projets