cover

064
Habiter la Lisière

Construction de 20 logements collectifs et 15 logements individuels


Maîtrise d’ouvrage
CDC Habitat Social
Lieu
ZAC Croix Bonnet, Bois d'Arcy(78)
Maîtrise d’œuvre
Atelier FUSO (architecte mandataire)
Échelle office (architecte associé)
EVP (structures)
ALP (économie)
Switch (fluides + HQE)
Ma-Geo (VRD)
Aïda (acoustique)
Surface
2.700 m² logements
Coût
6.2 M€
Label
NF Habitat HQE
Effinergie +
RT 2012 <20%
Calendrier
Livré
Décembre 2022
Photo
@ Antoine Seguin

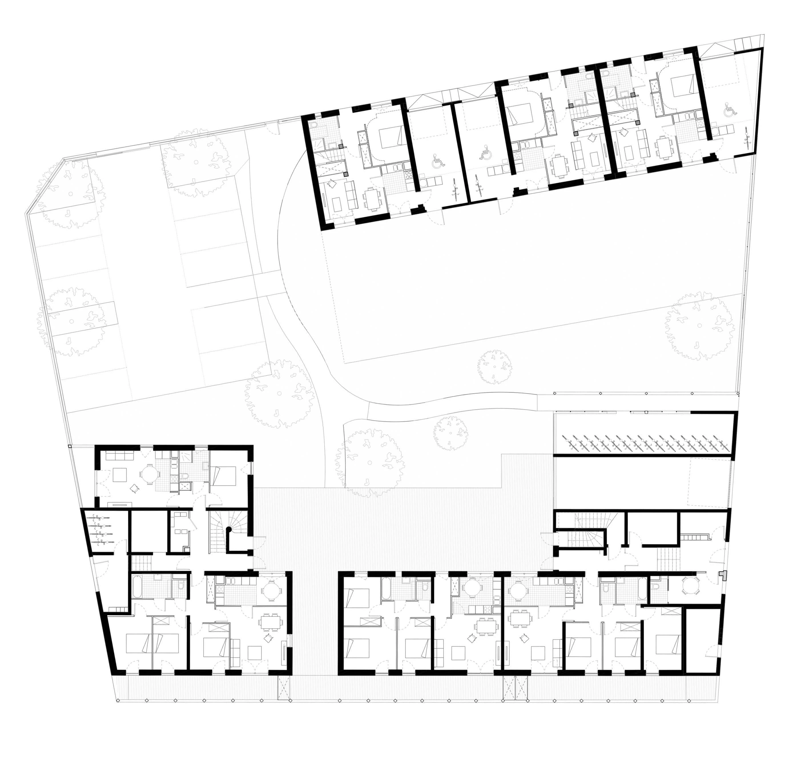
La stratégie d’implantation proposée cherche à garantir des continuités urbaines et à articuler les différents volumes construits entre eux et avec le reste du quartier.

L’immeuble de 15 logements collectifs ( dont 15 places de stationnement semi enterrées) est implanté au sud du lot 19 et bénéficie d’une orientation favorable et de vues dégagées sur le « parc canal ».

Cet ensemble s’inscrit dans la continuité des immeubles qui longent le canal et sa volumétrie marquée par un épannelage décroissant depuis le R+3 vers le R+2 affirme une transition depuis la ville vers la forêt.

Une « faille » ou interruption du volume renforce la décomposition en sous ensembles pour permettre de dégager des vues depuis le nord de la parcelle vers le canal entre les deux émergences et garantit d’autre part une répartition très qualitative de logements traversants où double orientés.

La volumétrie de l’immeuble de logement collectif devient décroissante pour garantir une articulation progressive depuis le canal vers le coeur du quartier et les parcelles accueillants les maisons individuelles groupées.

La volonté affirmée de garantir l’articulation des tissus pour permettre de « tenir » et de mettre en lien des ensembles urbains et paysagés, participe à l’inscription du projet dans une démarche de développement durable.

«Construire durable» c’est favoriser une architecture où l’on mise sur la sobriété des dispositifs; c’est concevoir des enveloppes performantes, c’est considérer la compacité du bâtiment et c’est favoriser les apports d’énergies naturelles en privilégiant des orientations judicieuses.

Notre projet cherche à optimiser les implantations pour constituer des réserves foncières pour une densification raisonnée à plus long terme.

Durable car pérenne et évolutif.


Plus de projets