cover

009
Méhul

Construction de 47 logements et 2 commerces


Maîtrise d’ouvrage
Seqens + Primestia
Lieu
ZAC Méhul, Pantin (93)
Maîtrise d’oeuvre
Atelier FUSO (architecte mandataire)
DVVD (structure)
Cardonnel (fluides)
AE75 (économie)
Surface
3.400 m² logements
400 m² commerces
695 m² espaces extérieurs
Coût
6.5 M€
Label
NF Habitat
RT 2012 <20%
Calendrier
Livré en 2021
Photo
@ Arthur Crestani
@ Antoine Seguin

Dans un environnement urbain hétérogène au sud du secteur manufacturier Méhul, la parcelle est bordée à l’Ouest par le cimetière du Pré-Saint-Gervais, au Nord par trois immeubles contemporains de logements en R+5, R+3 et R+6, à l’Est par une maison de retraite en R+5 et au Sud par la Fonderie, plusieurs petits bâtiments en R+1 et R+2, ancienne manufacture reconvertie en bureaux.

Le projet se situe au dans un quartier mêlant immeubles de rapport, ateliers, et usines dont la mutation s’est amorcée avec plusieurs opérations de logements neufs et de reconversions en cours ou récemment livrées.

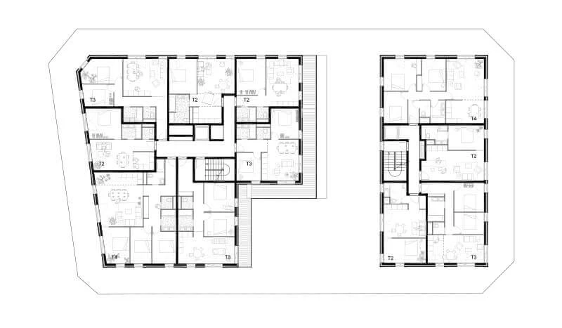
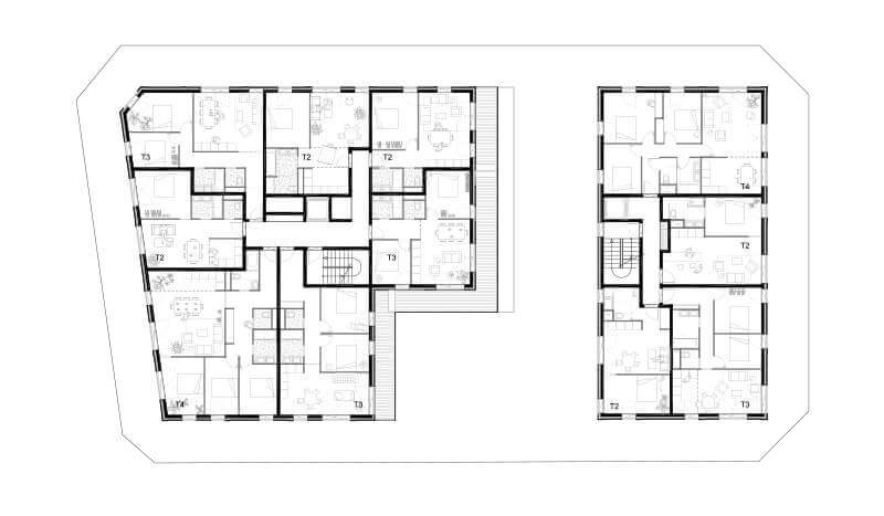
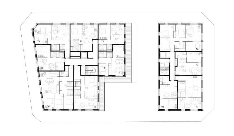
Le programme consiste en la construction de deux bâtiments, représentant 47 logements et deux locaux : un local commercial et un local d’artisanat.

Le bâtiment A (31 logements) est un programme de logements en locatif libre.

Le bâtiment B (16 logements) est un programme de logements en locatif social.

Le RDC est occupé exclusivement par un local commercial dans le bâtiment A et un local d’artisanat dans le bâtiment B.

Chaque bâtiment est installé sur un socle commun de parking en sous-sol.


Plus de projets